RE: Garaaži ehitamine -
viplala - 05-10-2018
(05-10-2018, 22:48 PM)Inri Kirjutas: (05-10-2018, 22:42 PM)viplala Kirjutas: Hoone ehitusaluse pinna alla loetakse ka katuseräästa üleastet seinast, ehk siis pealtvaates hoone kabariite, seega 60 ruuduse ehitusaluse pinnaga hoone puhul on tegelik ruumi suurus kõvasti pisem kui 60 ruutu.
Eee... paluks viidet. Kaks aastat tagasi oli ehitusalune pind siiski vundamendi välis mõõtude järgi.
Mnjah, segadus tekkis mingist ajalehes ilmunud info kohaselt. Ma vaatasin järgi ja ehitusalune pind on saanud 2015 konkreetse mõiste õnneks. Seega kuni meetrine katuseräästas ei lähe arvesse.
§ 19. Ehitisealune pind
https://www.riigiteataja.ee/akt/110062015008
RE: Garaaži ehitamine -
viplala - 05-10-2018
Üks võimalus on ka see, et garaaz valmis ehitada ja siis laiendada kuni 33%. Laiendamise puhul tuleb samuti ainult ehitisteatis ja projekt esitada. Ja selle võimalusega võiks juba ehituse käigus arvestada

Kokku saaks siis 80 ruutu umbes.
RE: Garaaži ehitamine -
hulgus - 06-10-2018
(05-10-2018, 22:48 PM)Inri Kirjutas: (05-10-2018, 22:42 PM)viplala Kirjutas: Hoone ehitusaluse pinna alla loetakse ka katuseräästa üleastet seinast, ehk siis pealtvaates hoone kabariite, seega 60 ruuduse ehitusaluse pinnaga hoone puhul on tegelik ruumi suurus kõvasti pisem kui 60 ruutu.
Eee... paluks viidet. Kaks aastat tagasi oli ehitusalune pind siiski vundamendi välis mõõtude järgi.
https://www.riigiteataja.ee/akt/107102014003
Kuigi...
Registris 400m2 ehitis on vundamendi servast 340m2 ja 2010 ehitusluba küsides arvutati ehitise alune katuse-räästa serva järgi
RE: Garaaži ehitamine -
t4rio - 06-10-2018
Eelpool vastanute rahustuseks võin öelda, et külastasin juba valla ehitusnõunikku. Ka tema kinnitas, et kuni 1m laiune räästas ei lähe ehitisealuse pinna alla ja 60m² võetakse seina väligabariitidest. Siiski foorumlaste negatiivne tagasiside garaazi suuruse kohta paneb mõtlema kas antud hoonet on üldse mõtet ehitada või tuleb otsida ca 2-3000 euri juurde ja tellida korralik projekt u 8x12m garaazile.
RE: Garaaži ehitamine -
maisalup - 06-10-2018
kui autoremondiga elatist ei teeni siis mu arust 60 ruudust küll juhul kui seda garaazina kasutada mitte kolikambrina, vastasel juhul on tarvis vähemalt 200 ruudust hoonet
RE: Garaaži ehitamine -
diesel - 06-10-2018
kuuekümne ruudu peal hoiustad kolme-nelja sõiduautot.
järgmise kuuekümne peal remondid lahedalt ühte.
kolmanda kuuekümne peal ...
RE: Garaaži ehitamine -
t4rio - 06-10-2018
Hetkel ongi niigi olemas kaks nö kolikambrit mis igapäevaselt muid asju varju all hoiavad, lihtsalt autot remontida pole enam kusagil. Maamehe loogika järgi 3m per auto laiust jätta, siis 8,5m puhul peaks jätkuma ka töölaua jaoks ruumi. Raha antud asjaga ei teeni kuid lihtsalt villand on siiamaani vana 5x6m kuuri all talvel külmetades töötamisest. Keset kuuri on rida poste püsti, auto sisse ajamise osa laiuseks on u 3m miinus siis seinaäärne koli ligi pool meetrit. Ka seal on kõik vajalik tehtud saanud, kuid vähe kitsas oli. Pikemas perspektiivis sooviks loomulikult autotõstukit, sellest ka seina kõrgus 3,5m.
RE: Garaaži ehitamine -
Janka - 06-10-2018
(06-10-2018, 18:44 PM)t4rio Kirjutas: Maamehe loogika järgi 3m per auto laiust jätta, siis 8,5m puhul peaks jätkuma ka töölaua jaoks ruumi.
.....
Pikemas perspektiivis sooviks loomulikult autotõstukit, sellest ka seina kõrgus 3,5m.
Jah, selline on juba kena laius.
Ise leiutasin sobiva laiuse sedasi, et kui näiteks kaheukselisel sierral mõlemad uksed pärani tirida, siis peab kindlasti jääma auto ukse ja seina (või töölaua) vahele veel tubli poolteist või lausa kaks meetrit vaba ruumi.
Kui seina kõrguseks valida 3,5 meetrit, siis viiemeetrise harja kõrguse juures saab katus enesele kalde alla 20 kraadi. Nats nadi eesti oludes. Selle vastu aitaks muidugi põranda valamine allapoole vundamendi ülemist pinda ehk allapoole soklit. Kuidas seda ohutult teostada, peab korralikult läbi mõtlema.
RE: Garaaži ehitamine -
viplala - 06-10-2018
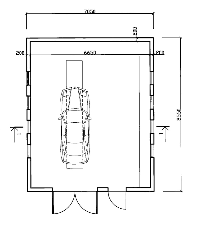
Garaaži pikkus võiks olla min 7m. Ette ja taha vaba ruumi meeter, et saaks ka kummarduda nii et perse vastu seina ei käiks. Auto kõrvale peaks samuti meeter jääma, autol vaja ju ust ka lahti teha teinekord. Seega ühe auto jaoks saame 7x4m. Ja seda miinimumis. Kask autot kõrvuti, võime lahutada mingi 50cm või siia sinna nats veel ehk. Kui me paigaldame posttõstuki, siis postide vahe on ise juba 3.1m Ja hädasti oleks vaja liikuda ka posti ning seina vahelt läbi. Seega ma pakuks 7x8m miinimum garaaži suuruseks kahe auto jaoks. Ja seda kõike ilma riiulite, töölaudade või vaba ruumita kuhu näiteks mootor ja kast maha tõsta nii et sa ei peaks üle nende iluvõimlemist hakkama tegema.
Juhul kui aga vaja on ka kruustangidega lauda, kus saab keevitada (ka keevitus ja kompressor võtavad põrandapinda), mõnda riiulit ja tibakenegi vaba pinda, siis alla 80 ruudu ma ei hakkaks mõtlema. Garaaž ehitad korra elus ehk, 20 ruutu ei ole teema kus järgi anda kui vähekenegi garaažis tegemist on õliste kätega. Juhul aga kui lihtsalt autosid hoiustada tahad seal, siis piisab ka vähemast, 5x4 ühe auto jaoks on täitsa piisav hoiustamiseks.
RE: Garaaži ehitamine -
Janka - 06-10-2018
Algsed eskiisid, mida oma tahtmise ja suva järgi hiljem muutsin ehk siis sellisel kujul ei läinud käiku kumbki.
Aga aimu saab.
Kahe auto hoiustamiseks -
Remondikojaks -
Tegelikkuses sai selline
RE: Garaaži ehitamine -
ZIL 131 - 06-10-2018
Tänapäeva vahendeid kasutades on autod võimalik hoiustamiseks külgepidi kokku "veeretada".
RE: Garaaži ehitamine -
13piisab - 07-10-2018
Esimese plokirea hüdroisolatsioon - kas teha ploki laiuselt ehk 300mm ploki puhul 300mm?
Õpetus justkui nii viitab. Ehk sein ja vundament jäävad eraldi konstruktsioonideks ning esimest rida hoiab paigas lisaks raskusjõule armatuur? Ning peenikest nn murfor armatuuri seal ei kasuta - ikka freesitud soon ja varras (milles on metalli murforist rohkem)?
RE: Garaaži ehitamine -
_rein_ - 07-10-2018
5x4 ühe auto jaoks on täitsa piisav hoiustamiseks.
5m autot 5x4 garaaži ei pane ja kui mahub ega ta õige auto ole.
RE: Garaaži ehitamine -
v6sa - 08-10-2018
(07-10-2018, 11:42 AM)_rein_ Kirjutas: 5x4 ühe auto jaoks on täitsa piisav hoiustamiseks.
Ainult siis, kui ruumis muid asju ei ole. No seinariiulid pea kohal võivad olla
RE: Garaaži ehitamine -
PlyVal64 - 08-10-2018
5X4 on jalgratta ja/või Smarti hoiuruum

Ok, laiust on piisavalt aga 5 meetrit on kolevähe pikkuseks. Siin on pakutud minimaalselt siseruumi pikkuseks 7 meetrit, mis juba hakkab looma. Tahad kahte asja teha, tööriistad, tõstukid, muud seadmed ka, siis alla 7X7 sisemõõdus, mis teeb pea 8X8 ehitusalust, välja ei mängi. 6X6 on piiripealne, väiksemaid asju teeb, võtad korraliku suure Raua (mina võtsin purjeka) ja käid külg-ees ja sittagi üleliigset pinda pole!
Ka see on konkreetne kogemus konkreetses kohas: minu arust tegigi lõpuks Margus61 selle 6X6 garage (ehitanud oli selle Märt Aarne!) asemel 7X7 töökoja, kus all on ka samasuur kelder. Ma sain aru, et velgedel sõites mahub suisa matkaauto sisse - ukse kõrgus/laius pole ka vähetähtsad!
Pilt visualiseerimiseks, miks peab garage uks vähemalt 2.55 lai olema

Oleks Autorestauraator 5 senti kitsamad teinud, ei oleks mul jaht ega Marguse treila sinna sisse mahtunud. Täna on
selle vana maja/garage asemel siis
meeter laiem/pikem ja pea 2 meetrit kõrgem töökoda. See vasakpoolne uks on täpselt samas kohas ja ukse kõrgus julge 3 meetrit.
RE: Garaaži ehitamine -
tcumen - 08-10-2018
Aga mulle tundub küll, et PlyVal64 vana
garaazi uksed on suuremad kui uuel.
Piltide põhjal otsustades.
RE: Garaaži ehitamine -
pkmp - 08-10-2018
Mõõtudega on tavapärane soovitus see, et võta mõõdulint ja mine mõõda sõbra, naabri, foorumikaaslase, kohaliku remonditöökoja, ühe, teise kolmanda ruume. Paberil või joonisel üldjuhul ettekujutust ei teki, seda enam, et mõisted suur ja väike tähendavad eri inimestel väga erinevaid asju.
RE: Garaaži ehitamine -
diesel - 08-10-2018
gigantomaania vist?
minul on nelja auto hoiukoht 6 x 10 meetrit. seest.
ruumi on lahedalt. seinu vahel pole. postid on.
äärmistel kohtadel on masinad seina ligi ja kahel keskmisel saab uksed pärani lahti teha.
jutt on ju auto hoiustamise kohast. tööruum on eraldi teema.
RE: Garaaži ehitamine -
PlyVal64 - 08-10-2018
(08-10-2018, 18:03 PM)tcumen Kirjutas: Aga mulle tundub küll, et PlyVal64 vana garaazi uksed on suuremad kui uuel.
Piltide põhjal otsustades. 
Mitte minu vaid ksf!Margus61 omal, mille vana versioon on ksf!autorestauraator poolt ehitatud.
Laiust ei tea, võib tõesti olla kitsam sest 2.55 uksi väga lihtne leida polnudki!! Kõrgust on kõvasti juures, see on peamine. Saab kõrge asi ka sisse.
Tsitaat:diesel
gigantomaania vist?
minul on nelja auto hoiukoht 6 x 10 meetrit. seest. ruumi on lahedalt. seinu vahel pole. postid on. äärmistel kohtadel on masinad seina ligi ja kahel keskmisel saab uksed pärani lahti teha. jutt on ju auto hoiustamise kohast. tööruum on eraldi teema.
Ei ole gigantomaania. See 1 meeter on sigaoluline. Keskmine normaalne auto võtab oma alla 2X5 meetrit PUHAST pinda. 3X6 ruumis on sellisega toimetamine ilgeim vaev! Valiant oli mul 4785 X 1803mm suur ja kuna sellistes mõõtudega kodu-garages on taga töölaud ja äärtes on ka vaja kola hoida, siis sisse mahtus sentimeetri pealt. Uksest sai vaid välja pugeda... Ma lükkasin alati lõpu seljaga tagastange vastu lauajalga ja garage uks läks täpselt vastu esistanget. Mitte midagi seal see teha polnud võimalik.
Ühe talve hoidsin Ahulas äia Kombi standargarages ja sama häda. Kodune on ehitatud GAZ69 jaoks ja see on ju junntükk pikkuselt. Põrnikas oli ka kui mänguasi seal sees, Sitika (3737 X 1620mm) ümber võisid joosta aga Autodega on teine teema. Siis on väljapääsmatu 7X3,5 plats per auto. Jah, hoida saab olematul pinnal aga milleks ehitades lolli mängida? Kui pead iga senti pooleks saagima, siis jäta parem tegemata...kogu aastake-paar ja tee ikkagi õige asi. Ma just lõpetasin oma ühe katuse remondi: 195 reakivi 144 euri ja 11 spetsiaalset ääre kivi 38 euri. Protsentuaalselt jõhker hind aga ilus peab ka olema. Et oleks ÕIGE.
OK, kui ei anta luba ja hoovis pole ruumi, täisehitusprotsent piirab - saame aru. Siis teed selle, mis võimalik. Aga reaalselt 6X6 vs 7X7 lageda töökojaruumi ehitusmaksumuse vahe on olematu. Ja on ka olematu hinnavahe ustel,
suurusjärgud saab siit arvutada. Tavaline ilma lisadeta garage uks: 2,3 X 2,35 elik suhteliselt mõttetu suurus 546eur selle kalkulaatori abil. Jääme legaalse transpordi mõõtudesse ehk uks 2,6 X 3,05 hind seal 722 eur. Kui võtta, et Ehitusseadustiku järgi on üks mõõtkava kuni 60 ruutu ja kuni 5 kõrge, siis selline ukseava mahub ilusti sisse. 140milli silluse hinnavahegi on olematu - 40 euri on 3-meetrine 2,5-meetrisest kallim. Jah, iga asi teeb natuke ja natuke kallimaks aga lõpuks on ka ASI. Kõige kurvem ongi juhus, kus teed asja valmis, siis ostab mingi väge teistlaadi apastraadi a'la
matkaauto või traktori ja avastad, et see ei mahugi garage uksest sisse...
A'la maameestel tavaline MTZ 820 on olematud 4,1 meetrit pikk aga
standardlaius 2550 ja kõrgus 2830! On lai ratas all, vaja midagi soojas teha ja oledki pees. Või rullid mudas valgetes tossudes... Ehk maamehel alla 3X3 ukseaugu tasu mõeldagi, pigem 3250X3250 mõõt vms. Edit: toosama matkaauto ka on paberites 5740 pikk ja 2935 kõrge aga 6-meetrisesse garagesse sisse ei mahuks ,sest rattahoidjad jms on lisapikkus. OK, see on "vaid" 2,2 lai ja peeglid saab kokku keerata... kuid 2250 uksest ikka sisse ei sa, sest küljeruloo on ka... See on siis "tegelik elu"
RE: Garaaži ehitamine -
v6sa - 09-10-2018
(08-10-2018, 19:53 PM)diesel Kirjutas: gigantomaania vist?
minul on nelja auto hoiukoht 6 x 10 meetrit. seest.
...
Siin ei räägita hädapärast minimaalselt vajalikust auto säilitamiseks, vaid mõistlikuks elusk vajalikust. Meil ei ole enam möödunud sajandi viiekümendad, kus vaid edasijõudnutel oli auto, enamusel tsikkel.
6x6 hoonesse mahub kaks autot vaid nii, et vasakud uksed on keskele (elik üks tuleb tagurdada) ja parematest sisse-välja ei käida. Mul on sääraseid 2 tk, 4 auto jaoks ja seda kogemust sitaste ning märgade peeglitega autost kummaltki poolt 25 cm laiematesse mulkudesse pimedas ja väsinuna tagurdamisest on üksjagu.
"Tööruum" sai tehtud 5x7m 2,7x2,7 uksega ja see on väike. Ruumi ju oleks aga need gaziljon pisiasja, mida on ka vaja kusagil hoisutada, võtavad kummagi seina ääres vajaliku ruumi sedapalju ära, et auto jaoks jääb napp 2x4. Ehk reaalselt on mugavam tegelda korraga poole autoga. Mis omakorda tähendab, et talvel ei tee suurt midagi.
Aga saab loomulikult ka väiksemaga ja odavamalt. Auto mõõdus kilehall ei maksa ju sittagi.