QUAD Apex Pro MXR100 / MX Suzuki RM85 RM250 / Arctic Cat ZR700 ... nokitsen palju

Ühe hoidja valmistasin veel puidust. Kuna tegu on pooletollise säärega, siis 12,5 mm puuriga sai sääre kinnihoidmisklotsid valmis tehtud:

   

   

   


   

Arrogance diminishes wisdom ! 
Vasta

Otste kinnituspuksid olid vanast määrdest tösiselt kinni jäänud. Tundub, et kogu kinnitus liikus plastik-pukside najal hoopis, mis on löökide lja painete leevenduseks, kuid mitte liikumiseks möeldud.
Vabastasin metallpuksid omavahel, puhastasin ja määrisin.

   

   

   

Arrogance diminishes wisdom ! 
Vasta

Kui ma ükskord need tihendid kätte saan ja amorte kokku hakkan panema, siis et säär läbi tihendite korgi saada mugavalt, ilma tihendeid vigastamata, tegin selle tarbeks sääre otsa alumiiniumist koonuse, 5-kraadise kaldega:

   

   

   

   

Arrogance diminishes wisdom ! 
Vasta

Hiljem amortidele öhukambri öhu sisse-saamiseks on neil taas see nöelaga täitmise ventiil (quadi MX-amordil oli ka, kuid vahetasin tollel ära). Kus pime polt tuleb eest vötta, nöel läbi kummi suruda, öhk sisse pumbata, nöel välja ning pime tagasi ette.
Kuna mul eelmistest amortide nokitsemistest 4 ventiili üle oli, otsustasin need asemele panna.

   


Originaal ventiil on aga 7/16''-20 keermega, minu ventiil aga G 1/8''-28 keermega. Pealevaadates tundus, et saan originaal-ventiili läbi puurida ning siis selle sisse oma uue auto-ventiili asemele keerata, kuid möötusi uurides ikkagit ei saa. Originaali keerme pöhi on 0,05 mm väiksem kui uue keerme tipp.
Uus plaan ... teen ise vahetüki körgema, kuhu uus ventiilikorpus sisse mahuks ... jääb liialt välja pikalt. Peaks mahtuma ää küll, kuid ei meeldiks mulle. Lisaks tuleks neid vahetükke teha 4 tk. Ja seda öhku ei pea sinna panema iga kord. Korra panen, vöibolla korra aastas kontrollin, kui sedagit.
Vaatasin rohkem veel uuema plaani poole, teha omale vahetükk nöelaga. Ühe teen ja saan köik 4 amorti ära täita (nöela soovitatakse kasutada 1 kord aint, kuid neid ju apteekist saada). Manuali järgi peaks sisse minema 14 bar ... arvan et niipalju ei pane, see hüpete tarvis, mulle piisab 8 bar küll.

Uurides netist neid pakutavaid vahetükkide pilte, ei saanud algul aru, kuidas nad nöela kinnitavad survekindlalt.
Mul oli leida vaid 6mm plastvooliku kinnitus. Hoiab löikeplekiga nöela ja tihendab O-röngaga, vahele puks ning teisepoole autoventiil:

   

   


Ei ole jällegit kindel, kas ikka 14 bar kinni hoiab.

Üks töökaaslane aga tundis selle kinnituse kohe ära, vaadates originaalvahetüki pilti:

   


See olevat üks versioon plastvoolikute kinnituseks (ka metalltorud), rohkem ameerika süsteemide jaoks. Euroopas kasutatakse selle asemel löikerönga süsteemi torude kinnituseks.
Mingi imekombe läbi leidsin ühe 6mm välismööduga plastvooliku, millel oli veel otsas see kinnitus-süsteem koos mutriga. Mutter oli muidugit 7/16''-20 sisekeermega.
Sobis ideaalselt mulle, mutri ja pesa muidugit vahetasin meetermöödus oma vastu.

   

   

   

   

   

Arrogance diminishes wisdom ! 
Vasta

Vasemal asub tulede ümberlüliti kaug-lähi nupp. Nuppu aga seal ei paistnud olema, vaid kummikate oli järgi:

   


Vötsin siis lüliti seest välja ja uurisin elu-olu. Puudu on vars, mis läbi plastiku lülitini jöuaks ja samas tihenduks lumekindlalt kattekummiga:

   


Tükk aega pusimist ja möötmist, ning sain löpuks puuduoleva vajaliku vidina joonise valmis. 6mm polt mahtus liugur-avasse sisse loksuga, ümardasin selle siis mingi tollmööduks ringi 6,3mm (hiljem selgus, et suht täpne tuligi, pidin pisut liivapaberiga poleerima liugpinda varrel).

   

Arrogance diminishes wisdom ! 
Vasta

Joonis olemas, tegin siis selle "kellassepa" treimise valmis:

   

   

   

   



Kuna ma unustasin selle roostevabast teha, ning uuesti ei hakanud treima, siis oksideerisin selle, et rooste ei läeks.

   

   

Arrogance diminishes wisdom ! 
Vasta

Kui see liugpinna hilisem poleerimine (et ta vabalt vedrujöul liikuda saaks) välja jätta, siis sobis paika ja toimib ilusasti.

Kontroll, et kinnitusosa öieti sai:

   


Siis vars läbi kummi ja korpuse ning lüliti sisse nupuvarrele otsa:

   

Arrogance diminishes wisdom ! 
Vasta

Kuidas see oksüdeerimine käib?
Vasta

(01-12-2018, 23:45 PM)olli Kirjutas:  Kuidas see oksüdeerimine käib?

Gaasipitsiga detail kirsi-punaseks ja kohe siis karastus öli sisse.

Arrogance diminishes wisdom ! 
Vasta

Tänud, päris kaval.
Vasta

Saabusid kauaoodatud omapärastes möötudes amortide tihendid.

   

   

   

   

   


Kohe sai ka esiamordid kokku pandud:

   

   


Olgugi, et ennem olid amordid all tagurpidi, otsustasin nad panna nii nagu nad originaalis käisid ... amordi korpus suusa pool.

   


Täitenöel toimis kenasti.

Arrogance diminishes wisdom ! 
Vasta

(02-12-2018, 01:09 AM)overspeed Kirjutas:  
(01-12-2018, 23:45 PM)olli Kirjutas:  Kuidas see oksüdeerimine käib?

Gaasipitsiga detail kirsi-punaseks ja kohe siis karastus öli sisse.

Mis õli kasutad ja kust seda saab?
Vasta

(04-12-2018, 14:14 PM)Envir Kirjutas:  
(02-12-2018, 01:09 AM)overspeed Kirjutas:  
(01-12-2018, 23:45 PM)olli Kirjutas:  Kuidas see oksüdeerimine käib?

Gaasipitsiga detail kirsi-punaseks ja kohe siis karastus öli sisse.

Mis õli kasutad ja kust seda saab?

Olen kasutanud üksköik mis ettejuhtunud mootoriöli. Aga ei näe mingit pöhjust, et see ei vöiks olla ka mingi muu tehnika öli.

Arrogance diminishes wisdom ! 
Vasta

Sain ka teise esi-amordi kokku, kuid öhku kuidagit sisse ei saanud.
Kuna nöelad taluvad vaid ühekordset kasutust, pidin leidma teise amordi jaoks uue nöela. Kahjuks ükski apteeek sellist vajalikku ei pakkunud, mingi teistmoodi standart on neil, jämedam väljast kui mul löikeröngad, kuid täpselt nii jäme kui mo varuvariant vastu vötab.
Sellega ka teise amordi täidetud sain. Pumba manomeeter mul üle 10 bar ei näita. Panin sisse üldse 8 bar. Piisab esialgu, hüppeid tegema minna ei plaani.

   

   

Arrogance diminishes wisdom ! 
Vasta

Oksüdeerimisel tuleb olla ettevaatlik. Tulekahju mõttes eelkõige. Väikeste detailide puhul pole oht eriti suur. Suuremate detailide puhul on aga oht juba reaalne. Suur detail ajab väikese koguse õli kiirelt kuumaks ja siis keema. Keev õli aga on väga kergesti süttiv ja ka muudmoodi inimesele ohtlik.
Ja pidage meeles VEEGA ÕLI KUSTUTADA EI SAA.

hp
Vasta

(04-12-2018, 20:07 PM)motamees Kirjutas:  Oksüdeerimisel tuleb olla ettevaatlik. Tulekahju mõttes eelkõige. Väikeste detailide puhul pole oht eriti suur. Suuremate detailide puhul on aga oht juba reaalne. Suur detail ajab väikese koguse õli kiirelt kuumaks ja siis keema. Keev õli aga on väga kergesti süttiv ja ka muudmoodi inimesele ohtlik.
Ja pidage meeles VEEGA ÕLI KUSTUTADA EI SAA.

Loomulikult, mida suurem detail (vöi suurem kogus detaile), seda rohkem öli tuleb vötta, et see liialt kuumaks ei läeks.
Kuum öli on ka teatud temperatuuril isesüttiv. Kui punane detail ölisse pista, vöib korraks see sisestuskoht ka leegi vötta, kuid ümberringi jahedam oli lämmatab selle kohe.
Ma pole seda ennem mainima hakanud, sest eeldasin, et ohutus-tehnika tehakse ise-enesest ju ennem selgeks, kui sellise (vöi üksköik mis ohtu omava tööga) asjaga tegelema hakatakse.
... ega ma paljasilmi oma nöelahoidjaid testinud, ikka täis näomask ees.

Arrogance diminishes wisdom ! 
Vasta

(04-12-2018, 22:28 PM)overspeed Kirjutas:  Kuum öli on ka teatud temperatuuril isesüttiv.

kõik põlevad materjalid süttivad ise teatud kuumuse käes.ka puit läheb põlema ilma leegi ja sädemeta.
Vasta

(05-12-2018, 16:36 PM)muska71 Kirjutas:  ...ka puit läheb põlema ilma leegi ja sädemeta.

Jah, aga see pole oksüdeerimise juures oluline, kui just pihtisid puust ei tehta.

hp
Vasta

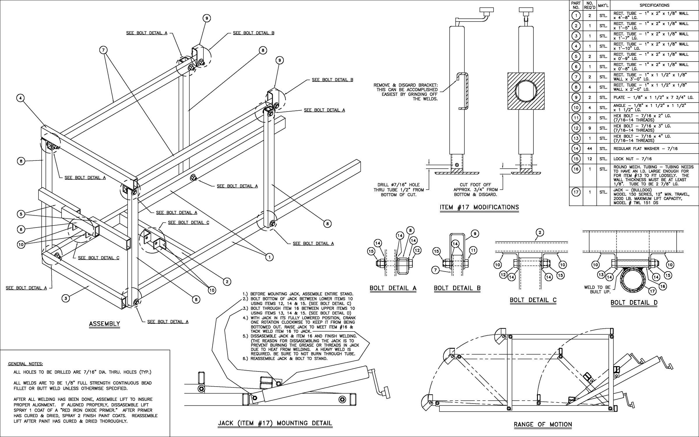
Et tagumist lindiosa saanil paremini hooldada, oleks parem kui saan ülesse töstetud on.
Tekkis idee ehitada omale selline tösteseade:

   


Leidsin juhuslikult netist joonised vajalikud:

   

   


Arvutasin möödud ringi tollidest mm-ks ja ehitus vöis alata.

   

Arrogance diminishes wisdom ! 
Vasta

Sobrasin kodo vanaraua hunnikus ja muudes kolihunnikutes. Leidsin vana rula rattad, elamuhaagise töstekäpa ja pisut neli-kant rauda. Natukse rauda tuli juurde osta:

   

   


Joonis sobis täpselt mo saani mudelile. Selle järgi löikasin vajalikud jupid, puurisin augud öigetesse kohtadesse ja keevitasin vidinad kokku.
Ülemine rakis valma:

   


Alusraamile ma hetkel pukse ega rattaid liigutamiseks (koos saaniga) teha ei plaani. Kuid rakist saani alla saamiseks vajasin ikkagit mingeid rattaid.
Tegin siis alusraami otstesse väikese nurga ning möötsin rularataste kinnitusavad nii, et need 1mm öhus oleks, kui rakis vasta maad. Kui nüüd rakise ninapoolset otsa kergitada pisut, puutuvad rularattad maad ja rakis on saani alla- alt söidetav.

   

   

   

Arrogance diminishes wisdom ! 
Vasta




Kasutaja, kes vaatavad seda teemat: 2 külali(st)ne